Teléfonos 922 244 741 / 922 290 875 / 608 955 070

Referencia41217
TipoOficina
ModalidadAlquiler
MunicipioSan Cristóbal de La Laguna
Provincia/ZonaLa Laguna
Subzona
Precio2.750,00 €
M² Construídos271 m²
Comunidad0,00 €
AntigüedadUsado
Categoría Energética
Dormitorios0
Baños2
Aseos0
AmuebladoNo
M² Terraza78.48 m²
PiscinaNo
Nº Plazas Garaje0

Oasis Inmobiliaria alquila Inmueble situado en Plaza de la Concepción, San Cristóbal de La Laguna Ubicado en pleno casco histórico de San Cristóbal de La Laguna, frente a la emblemática Plaza de la Concepción, este inmueble exclusivo se erige en una zona peatonal privilegiada.

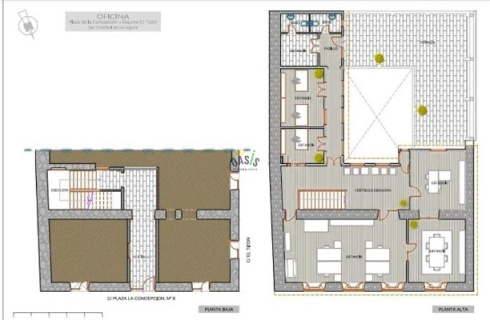
Por distribución, esta propiedad dispone de un aprovechamiento que puede ubicarse cualquier tipo de despacho o dormitorio, ya que las numerosas estancias, de diversos tamaños.

La propiedad cuenta con una superficie construida total de 271,73 m², distribuidos en las siguientes áreas: Planta baja (38,41 m²): acceso principal que incluye un vestíbulo con entrada directa desde la calle. Planta alta (233,32 m²): Dispone de cinco espacios amplio y dos baños modernos además de una cocina sencilla.

Además, dispone de una fantástica terraza de 78,48 m², ideal para su uso en exterior, en su privilegiado emplazamiento. El inmueble destaca como una magnífica edificación señorial.

Cuenta con aire acondicionado en prácticamente todas las estancias.

Su ubicación es perfecta en pleno corazón de la zona peatonal de La Laguna, rodeado de restaurantes, cafeterías, tiendas, instituciones administrativas y de todos los servicios necesarios. A escasos minutos está el tranvía y la parada de guaguas.

Esta propiedad puede usarse como vivienda.

No se encontraron resultados.

¿Desea más información?